Eyecatcher
Eyecatcher
Eyecatcher
Eyecatcher
Eyecatcher

Modern und ruhig wohnen

Ein architektonisches Highlight

Über Q4

Wohnen können, wo alle wohnen wollen

2020
Fertiggestellt

08
Wohneinheiten

08
Barrierefrei

Wienhausen steht hoch im Kurs bei allen Kennern der Region Celle. Kein Wunder: Der mit charakteristischem Fachwerk gestaltete Ortskern besticht durch Postkartenansichten und bietet trotzdem eine Infrastruktur auf Höhe der Zeit.

Die Wohnungsbaugenossenschaft SÜDHEIDE eG möchte mit ihrem Neubauprojekt in der Bungerstraße Mieterinnen und Mietern aller Altersgruppen ermöglichen, von den Vorteilen dieses beliebten Wohnorts zu profitieren.

Vom Shopping bis zur medizinischen Versorgung sind die wesentlichen Dinge des Alltags zu erledigen, ohne dass man dafür Wienhausen verlassen muss. Wenn mal speziellere Angebote gefragt sind, ist Celle immer in der Nähe – und selbst Fahrten nach Hannover sind nicht völlig außerhalb der Reichweite.

Eine Besonderheit unserer neuen Wohnungen: Das in unmittelbarer Nachbarschaft gelegene Pflegeheim freut sich auf eine Kooperation und öffnet Mieterinnen und Mietern reiferen Alters gerne seine Türen, um gezielt an Aktivitäten teilzunehmen oder für günstige Konditionen ein Mittagessen zu bekommen, wenn die eigene Küche mal kalt bleiben soll.

Wohnung
Wohnung
Wohnung

Insgesamt werden durch das Neubauprojekt der SÜDHEIDE eG acht neue Wohneinheiten in der Bungerstraße entstehen. Das Gebäude ist barrierefrei ausgeführt, alle Wohnungen können über einen Aufzug erreicht werden.

Die 2- bis 3-Zimmer-Wohnungen bieten Flächen zwischen 58 und 82 Quadratmetern an. Die Wohnungen werden hochwertig ausgestattet – beispielsweise mit Parkettböden – und verfügen alle über Außenbereiche in Form von Balkons oder Terrassen.

Ein architektonisches Highlight: In einigen der Wohnungen wird der Raum nach oben geöffnet und erlaubt eine Gestaltung mit äußerst hohen Decken. Doch auch in ganz praktischen Aspekten wird man hier Komfort auf Höhe der Zeit vorfinden. So wird zum Beispiel die Außensteckdose im Fahrradschuppen ermöglichen, alle zwei- oder vierrädrige E-Gefährte dort aufzuladen, wo sie sowieso parken.

Interesse geweckt?

Wohnungen

Das passende für Sie dabei

Vorschau für Ihren Platz bei Q4. Nutzen Sie unsere interaktive Grundriss-Übersicht, um sich detailliert über die räumlichen Gegebenheiten der Anlage zu informieren.

Keller

Kelleraufteilung


Keller zu Wohnung 1 9,35 Keller zu Wohnung 2 8,62 Keller zu Wohnung 3 8,69 Keller zu Wohnung 4 8,69 Keller zu Wohnung 5 7,45 Keller zu Wohnung 6 7,70 Keller zu Wohnung 7 8,07 Keller zu Wohnung 8 10,65

Erdgeschoss

Erste Wohnung Links

2-Zimmer-Wohnung


Fläche in qm Wohnen / Kochen 27,73 Schlafen 19,35 Bad 8,52 Flur 15,94 Abstellraum 4,16 Terrasse 6,18


Summe in qm 81,88

Zweite Wohnung Links

2-Zimmer-Wohnung


Fläche in qm Wohnen / Kochen 29,63 Schlafen 12,27 Bad 5,73 Flur 3,49 Abstellraum 3,08 Terrasse 4,12


Summe in qm 58,32

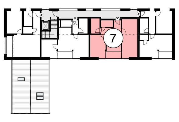
Dritte Wohnung Rechts

3-Zimmer-Wohnung


Fläche in qm Wohnen / Kochen 25,88 Schlafen 15,47 Arbeiten 10,07 Bad 5,73 Flur 7,60 Abstellraum 3,61 Terrasse 5,10


Summe in qm 73,46

Vierte Wohnung Rechts

2-Zimmer-Wohnung


Fläche in qm Wohnen / Kochen 25,58 Schlafen 15,57 Bad 5,73 Flur 8,58 Abstellraum 2,16 Terrasse 3,68


Summe in qm 61,48

1. Obergeschoss

Erste Wohnung Links

2-Zimmer-Wohnung


Fläche in qm Wohnen / Kochen 25,90 Schlafen 15,29 Bad 5,91 Flur 6,90 Abstellraum 2,65 Loggia 1,36


Summe in qm 58,01

Zweite Wohnung Links

2-Zimmer-Wohnung


Fläche in qm Wohnen / Kochen 29,67 Schlafen 12,32 Bad 5,73 Flur 3,49 Abstellraum 3,08 Loggia 1,18


Summe in qm 55,47

Dritte Wohnung Rechts

3-Zimmer-Wohnung


Fläche in qm Wohnen / Kochen 25,94 Schlafen 15,52 Bad 5,73 Flur 7,60 Abstellraum 3,61 Loggia 1,18


Summe in qm 69,65

Vierte Wohnung Rechts

2-Zimmer-Wohnung


Fläche in qm Wohnen / Kochen 25,58 Schlafen 15,76 Bad 5,73 Flur 8,58 Abstellraum 2,16 Loggia 1,02


Summe in qm 58,83

Interesse geweckt?

Kontakt

Wir freuen uns von Ihnen zu hören

Sie haben Fragen zu Q4? Dann nutzen Sie doch ganz bequem unser unten stehendes Kontaktformular und wir werden Ihr Anliegen umgehend bearbeiten. Oder wollen Sie wissen, welche Wohnungen das Q4 bietet?

Kontaktinfo

Sie finden das Q4 unter folgender Anschrift:
Bungerstraße 4, 29342 Wienhausen

Bei Fragen wenden Sie sich an:

SÜDHEIDE eG
Wohnungsbaugenossenschaft
Groß-Hehlener-Kirchweg 5
29223 Celle

Ansprechpartnerin: Herr Meinhardt

meinhardt@suedheide.de

0 51 41 / 5 94 - 32

0 51 41 / 5 94 - 11

Sagen Sie Hallo

Gefällt Ihnen eine Wohnung? Dann sollte wir uns kennelernen!